项目名称:嘉兴市市区快速路环线工程(一二期)
业主单位:嘉兴市快速路建设发展有限公司
规划设计单位:上海市政工程设计研究总院(集团)有限公司
施工单位:龙腾照明集团股份有限公司
市政院联系电话:021-55001167
联系人:高嵩、钟晓燕

项目概况
嘉兴市城区快速路由高架道路、地面道路以及地下道路组成,全长28.67km,采用“高架/地道双6+地面辅道双6~8”建设标准,按照“统一规划、统一设计、整体立项、分期实施、分段施工”原则建设。

项目进展
1)一期、二期(西南段):高架道路约15km、地面道路约16km,已在21年6月建成通车,安装了2660套“综合杆”。
2)三期工程一阶段5.9km完成施工图设计。
3)三期工程二阶段7.6km完成规划选址。

合杆设计
1、设计目标
按照“应合尽合”的设计原则,实现全线高架道路和地面道路杆件的集约化设置,提升品质。结合新建高架快速路、地面道路架空线及管线迁改,解决嘉兴快环杆体多样、分布无序,从节省地下空间资源、提升品质切入。集成照明、通信、治安监控、交通监控、交通信号、交通指示、市民服务等多种功能、“新型智慧城市”集约化、共享化数据服务、智慧交通、智慧路灯、智慧停车、智慧驾驶(预留)。满足辖区特殊道路等公共区域典型警情事件监测预警需求。



2、设计历程回顾
(1)19年3月开始,按照嘉兴市委市府品质提升要求,确定以综合杆建设为抓手,进行高架和地面道路“多杆合一、多箱合一、多管合一”设计。
(2)19年11月通过(一二期)多杆合一初步设计专项评审。
(3)20年6月通过公安交警组织的交通监控和交安设施施工图审查。
(4)20年7月完成多杆合一施工图设计文件图审。(一二期)

3、主要设计特点
1)“应合尽合”,实现所有的设施杆件的合杆、留有扩展余地。
2)大型信息设施合杆杆件---新材料应用,控制杆径尺寸。
3)高架道路综合杆基础及管线---建模、试验,兼顾功能与安全。
(1)高架基础:按搭载设备类别,设计高架上各类综合杆基础。
(2)高架管线:在防撞墙结构容许范围,增加纵向管线孔数。
4)综合杆和综合机箱自身智慧化---智能网关+软件赋能。
5)智慧多功能:全域信息采集设施搭载+信息诱导设施搭载---与智慧交通融合、优化信息管理流程。

多功能智慧杆--综合杆与智能设备搭载
1、综合杆信息采集设备搭载
高架道路实施超高清视频监控,每隔200米一套400万像素球形摄像机;在分合流区域、上下匝道口、弯道、变坡点等交通要点处加密设置400万像素一体化枪球联动摄像机,此外,每隔500米搭载采用二维主动扫描式雷达车辆检测器,除能提供交通量信息外,还能同时识别及跟踪256个目标对象、对快速路进行全覆盖监视,实现智能分析、联动防控功能等。选取危险的弯道或容易超速的典型平直路段、匝道末端、匝道分流处,设置了900万像素的电子警察设备(含环保型补光装置),在禁止鸣喇叭的区域或者路段上设置鸣笛抓拍设备。这些信息设施都搭载在综合杆上。
地面道路交叉口处设置1~2套400万像素监视摄像机;交叉口各进口道设置了900万像素的电子警察设备或违章抓拍摄像机(含环保型补光装置),在禁止鸣喇叭的区域或者路段上设置鸣笛抓拍设备,这些信息设施也搭载在综合杆上。

球形摄像机

枪球联动摄像机
2、交通信息诱导设备
在高架主线重要节点前设置门架式可变情报板、高架在出入口匝道前、地面在入口匝道上游路口三个方向设置悬臂式可变情板、在匝道入口处设置为小型可变情报板,用以实现广域诱导、区域诱导及入口匝道诱导。
3、智慧照明
照明灯具配置单灯控制器,实现夜间功能照明的远程控制和自动调光。
4、智能网关
在杆、箱内安装物联网边缘网关,非光纤传输的信息,可直接汇集到相应的智能网关,汇聚后在运管管理平台进行统一管理和数据共享。综合杆上后续搭载设备,也可选择通过智能网关将数据通过运管管理平台推送到其自身的信息系统,或通过指定的网络传输,或者汇聚到指定的信息系统中。

地面、高架可变信息诱导屏
高架路合杆基础、管线
1、高架合杆基础
除无横臂杆外,基础的横断面一致,差异在预埋法兰纵向尺寸。

高架合杆基础横断设计面
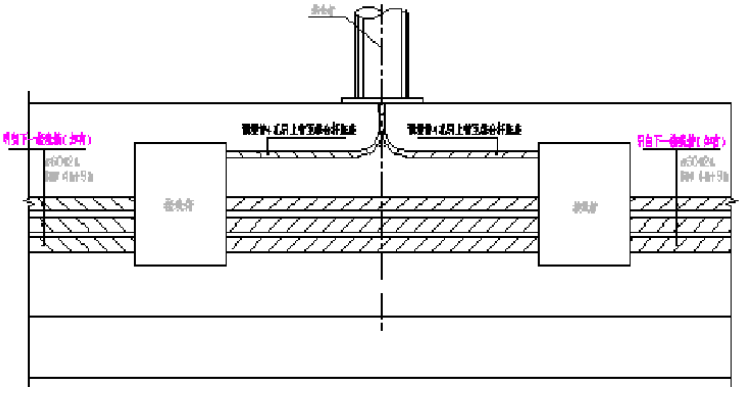
2、高架合杆纵向管线
1)引上管在护栏上方,有信息设备处设2处接线箱。
2)在砼护栏配筋内采用格珊管+圆管作为总线主干管线。


高架合杆纵向管线设计图
3、杆箱一体化设计
嘉兴高架快速路上多杆合一,与信息设施搭载适配的综合机箱,采用杆箱一体,按3个用户仓进行设计,主要涉及交通监控设备、通信微基站以及预留数字化道路建设。

杆箱合一实景与设计图(正视)

杆箱合一实景与设计图(侧视)
快速路多杆合一成果
在数字时代,更好的群众体验感必然需要科技的加持。快速路成为嘉兴市首条大规模安装“智慧灯杆”的路,西南段(一二期)安装了2660套“综合杆”,将标识类、监控类、检测类、通信类等设施搭载到综合杆上,采用分层搭载演绎成智慧灯杆,并间隔安装综合机箱,通过“智慧灯杆+综合机箱”搭配完成数据采集、汇总后传输至相关平台,实现与智慧化交通管理融合。综合杆作为路侧监控和通信支撑载体,也为后续的交通数字化推广应用进行“留白”。作为全国首条在城市高架路上实现多杆合一,体现嘉兴特色。
1.高架与地面道路门架式大型信息设施杆件“应合尽合”

高架道路门架式全幅型情报板综合杆实景

地面道路门架式情报板与监控设备综合杆实景
2.高架与地面道路悬臂式信息设施杆件“应合尽合”

高架道路悬臂式情报板合杆实景

高架道路门架式情报板、地面监控及交通标志合杆实景

地面道路悬臂式情报板、交通标志门架合杆实景
3.高架与地面道路大型交通标志设施杆件“应合尽合”

高架三横臂综合杆实景

高架双三横臂综合杆实景

地面三横臂综合杆、门架交通标志合杆实景
4.高架道路监控设施杆件“应合尽合”

高架上交通信号灯合杆实景

高架上摄像机合杆实景

高架上摄像机与小型标牌合杆实景
上海市政工程设计研究总院(集团)有限公司
联系电话:021-55001167
联系人:高嵩、钟晓燕